Проект каркасного хозблока-мастерской в стиле барнхаус (ХБ-64)
Архитектор: Дмитрий Новиков
Типовой проект





Проект каркасного хозблока-мастерской с крыльцом / террасой ХБ-64. Архитектура выдержана в современном стиле: барнхаус, скандинавский.
Хозблок имеет широкую дверь (1,2 х 2,1 м) для возможности хранения в нём крупногабаритных предметов. Дверь закрывается рольставнями.
Отделка фасадов: основным отделочным материалом является профилированный лист - он использован на кровле и на боковых фасадах. Вторым отделочным материалом является имитация бруса.
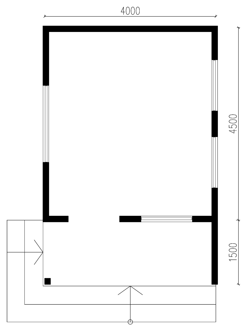
Хозблок спроектирован по каркасной технологии из сухих строганых пиломатериалов. Габаритные размеры хозблока снаружи по каркасу (без учёта слоёв наружной отделки) 4 х 4,5 м. Толщина каркаса стен - 95 мм. Без утепления. Фундамент столбчатый из бетонных блоков. Стропильная система рассчитана на 4 снеговой район.
Архитектурные параметры проекта ХБ-64:
Внешние размеры (без террасы): 4х 4,5 м
Внешние размеры (с террасой): 4 х 6 м
Высота от земли: 3,9 м
Высота потолка - 2,41 - 3,35 м.
Фундамент: столбчатый из бетонных блоков.
Несущая конструкция: деревянный каркас из строганых пиломатериалов.
Пол: по лагам из доски 45х140 мм.
Стропильная система: из доски 45х140 мм.
Каркас стен: из доски 45х95 мм.
Утепление: отсутствует.
Кровля: двускатная.
Покрытие кровли: проф.лист.
Отделка фасадов: имитация бруса, проф.лист.
Отделка интерьера: вагонка.
Покрытие пола: плиты ДСП QuickDeck 22 мм.
Состав проекта хозблока-мастерской ХБ-64:
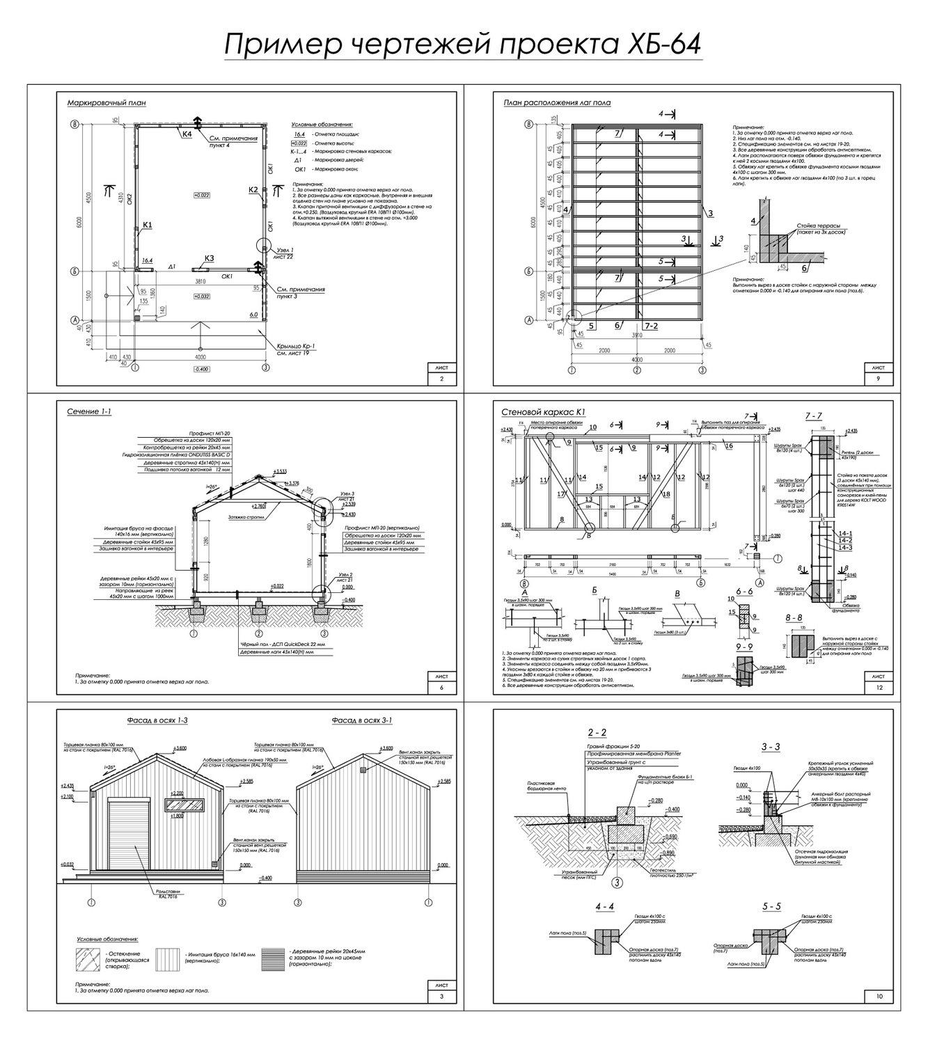
Проект представляет из себя pdf-альбом (34 листа формата А4) и состоит из трёх разделов:
1. Архитектурные чертежи - раздел АР (маркировочный план, фасады, разрезы, 3д-визуализация фасадов).
2. Конструктивные чертежи - раздел КР (чертежи всех конструктивных элементов (фундамента, перекрытия, каркасов стен, стропильной системы) с подробной спецификацией материалов.
3. Приложение к проекту: оптимизация раскроя пиломатериалов.
Стоимость проекта хозблока-мастерской ХБ-64:
3000 рублей
Ограждающие конструкции:

Пол:
1. Деревянные лаги.
2. Плиты ДСП QuickDeck 22 мм.

Стены:
1. Наружная отделка (профилированный лист).
2. Обрешётка.
3. Стойки каркаса.
4. Внутренняя отделка - вагонка.

Кровля:
1. Стропила.
2. Влагозащитная плёнка.
3. Контробрешетка.
4. Обрешетка.
5. Покрытие кровли (профлист).


Ответы на часто задаваемые вопросы:
Есть ли в проекте расчёт материалов?
Есть ли в проекте смета?
Можно ли внести в проект изменения?
Есть ли в проекте инструкции по строительству?
Что делать, если в проекте будут ошибки?
Можно ли вернуть деньги за проект?
Купить проект хозблока-мастерской ХБ-64
Чтобы купить проект или задать вопросы — заполните контактную форму ниже или выберите удобный способ связи (обязательно укажите название проекта, который хотите купить).
+7 977 268 04 53
+7 977 268 04 53
novikov-architect@mail.ru


