Проект каркасного хозблока 2 х 3 м (Х-23)
Архитектор: Дмитрий Новиков
Типовой готовый проект




Проект небольшого каркасного хозблока Х-23. Архитектура выдержана в современном минималистичном сканди стиле. Хозблок может быть использован для хранения вещей, садовой техники и инвентаря.
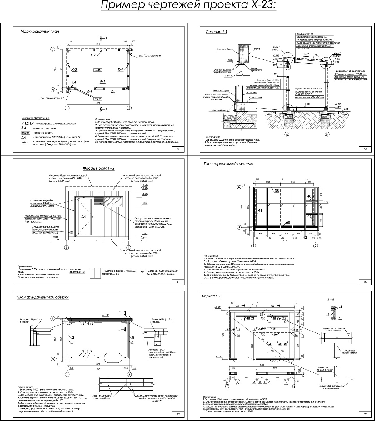
Хозблок спроектирован по каркасной технологии из обрезных пиломатериалов. Габаритные размеры снаружи по каркасу (без учёта слоёв наружной отделки) 2,2 х 3,3 м. Толщина каркаса стен - 100 мм. Без утепления. Фундамент столбчатый из бетонных блоков. В качестве альтернативы подойдёт также свайный фундамент. Отделка фасадов: основным отделочным материалом является профилированный лист - он использован на кровле и двух фасадах. Вторым отделочным материалом является вагонка. Отделка внутри - ОСП.
Расчётные параметры проекта: 5 снеговой район, 2 ветровой район.
Архитектурные параметры хозблока:
Внешние размеры (по каркасу): 2,2х 3,3 м
Внутренние размеры (чистовые): 1,85 х 2,95 м
Высота от земли: 2,75 м
Высота потолка - 2,15 - 2,3 м.
Фундамент: столбчатый из бетонных блоков.
Несущая конструкция: деревянный каркас.
Стены: из доски 50х100 мм.
Пол: по лагам из доски 50х150 мм.
Стропила: из доски 50х150 мм.
Утепление: отсутствует.
Кровля: односкатная.
Покрытие кровли: проф.лист.
Отделка фасадов: проф.лист, имитация бруса.
Отделка интерьера: ОСП.
Состав проекта хозблока Х-23:
Проект представляет из себя pdf-альбом (32 листа формата А4) и состоит из трёх разделов:
1. Архитектурные чертежи - раздел АР (маркировочный план, план кровли, фасады, разрез, 3д-визуализация фасадов, узлы, спецификация окон и дверей).
2. Конструктивные чертежи - раздел КР (чертежи всех конструктивных элементов (фундамента, перекрытия, каркасов стен, стропильной системы) с подробной спецификацией материалов.
3. Приложение к проекту: оптимизация раскроя пиломатериалов.
Стоимость проекта хозблока Х-23:
2100 рублей
Ограждающие конструкции:

Пол:
1. Деревянные лаги.
2. Влагозащитная плёгка.
3. Покрытие пола из ОСП-3.

Стены (вариант 1):
1. Наружная отделка (профилированный лист).
2. Наружная обрешётка.
3. Стойки каркаса.
4. Внутренняя отделка - ОСП.

Стены (вариант 2):
1. Наружная отделка (вагонка из лиственницы или сосны).
2. Стойки каркаса.
3. Внутренняя отделка - ОСП.

Кровля:
1. Стропила.
2. Влагозащитная плёнка.
3. Контробрешетка.
4. Обрешетка.
5. Покрытие кровли (профлист).


Ответы на часто задаваемые вопросы:
Есть ли в проекте расчёт материалов?
Есть ли в проекте смета?
Можно ли внести в проект изменения?
Есть ли в проекте инструкции по строительству?
Что делать, если в проекте будут ошибки?
Можно ли вернуть деньги за проект?
Купить проект хозблока Х-23
Чтобы купить проект или задать вопросы — заполните контактную форму ниже или выберите удобный способ связи (обязательно укажите название проекта, который хотите купить).
+7 977 268 04 53
+7 977 268 04 53
novikov-architect@mail.ru


