Проект каркасного летнего душа с раздевалкой Д-22-12
Архитектор: Дмитрий Новиков | 2025 г.
Типовой проект

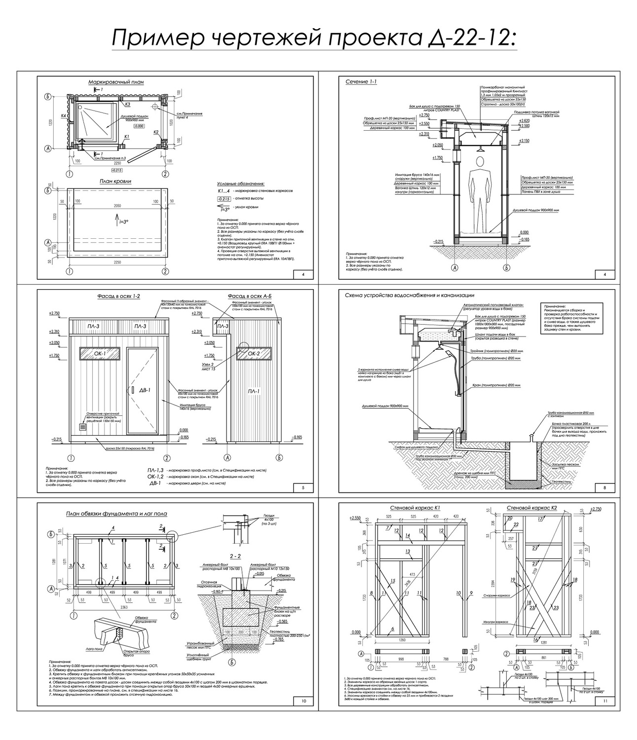
Проект современного летнего душа в стиле скандинавский минимализм. Спроектирован по каркасной технологии. Габаритные размеры снаружи по каркасу 2,25 х 1,22 м. Внутри две зоны: раздевалка и душ (с душевым поддоном). Толщина каркаса стен - 100 мм. Без утепления. Фундамент - столбчатый из бетонных блоков. Кровля - односкатная малоуклонная. Конструкция рассчитана на применение пластикового бака для душа на 150 литров с подогревом. Бак располагается в чердачном пространстве под кровлей. Для того, чтобы бак нагревался от солнца, покрытие кровли предусмотрено из прозрачного профилированного монолитного поликарбоната. Благодаря прозрачной кровле также создаётся парниковый эффект в чердачном пространстве, что нагревает бак с водой ещё больше.
Параметры летнего душа Д-22-12:
Внешние размеры по каркасу: 2,25 х 1,22 м
Внутренние размеры по каркасу: 2,05х1,02 м
Высота от земли: 2,95 м
Высота потолка: 2,14 м
Фундамент: столбчатый из бетонных блоков.
Несущая конструкция: деревянный каркас из доски 50х100 мм.
Пол: по лагам из доски 50х150 мм.
Стропила: из доски 50х100 мм.
Утепление: отсутствует.
Кровля: односкатная.
Покрытие кровли: профилированный монолитный поликарбонат.
Отделка фасадов: имитация бруса, проф.лист.
Отделка в интерьере: вагонка, панели ПВХ в зоне душа.
Состав проекта Д-22-12:
Проект представляет из себя pdf-альбом (27 листов формата А4).
1. Архитектурные чертежи - раздел АР (маркировочный план, план кровли, фасады, разрез, 3д-визуализация фасадов).
2. Конструктивные чертежи - раздел КР (чертежи всех конструктивных элементов (фундамента, каркасов стен, , перекрытия, стропильной системы) с подробной спецификацией материалов.
+ Оптимизация раскроя пиломатериалов.
Стоимость проекта душа Д-22-12:
1100 рублей
Ограждающие конструкции:

Пол:
1. Деревянные лаги.
2. Влагоизоляционная плёнка.
3. Черновой пол из ОСП.
(Чистое покрытие пола предполагается из линолеума).

Стены (вариант 1):
1. Наружная отделка (профилированный лист).
2. Обрешётка.
3. Стойки каркаса.
4. Внутренняя отделка (имитация бруса или вагонка).

Стены (вариант 2):
1. Внутреняя отделка (имитация бруса или вагонка).
2. Стойки каркаса.
3. Наружная отделка (имитация бруса).

Кровля:
1. Стропила.
2. Обрешетка.
3. Покрытие кровли (прозрачный профилированный монолитный поликарбонат).

Бак для воды:
Проект предусматривает использование пластикового бака для душа на 150 литров с подогревом (размеры 1000х1000 мм).


Ответы на часто задаваемые вопросы:
Есть ли в проекте расчёт материалов?
Есть ли в проекте смета?
Как приобрести проект?
Можно ли внести в проект изменения?
Купить проект летнего душа Д-22-12 на WiLDBERRiES
Цена: 1100 руб.
После нажатия на кнопку "Купить", вы будете перенаправлены на сайт Wildberries Цифровой. После оплаты товара на сайте Wildberries Цифровой в разделе "Покупки" можно будет скачать проект.
Возможно, Вас также заинтересует
Проект каркасного дачного туалета с умывальником в современном стиле.
Другие проекты в каталоге:
Заказать индивидуальный проект
Если Вы хотите заказать индивидуальный проект или задать вопросы — заполните контактную форму ниже или выберите удобный способ связи:
+7 977 268 04 53
+7 977 268 04 53
novikov-architect@mail.ru









