Проект каркасного мини-дома / бытовки с террасой 6х9м (БТ-96)
Архитектор: Дмитрий Новиков
Типовой проект






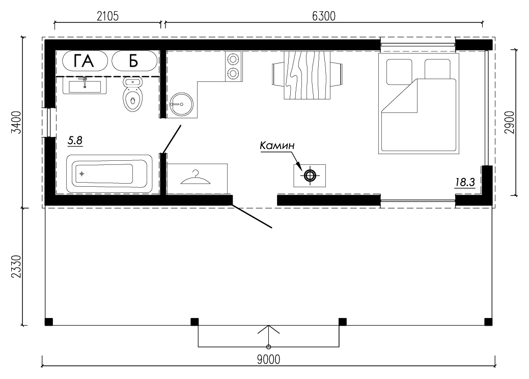
Типовой проект утеплённого каркасного мини-дома / бытовки (БТ-96) с примыкающей просторной крытой террасой (верандой) и панорамными окнами. Размеры бытовки 3,4 х 9 метров, размеры террасы 2,3 х 9 метров. Внутри дома 2 помещения: единое общее пространство кухни-столовой-спальни и сан.узел.
Мини-дом спроектирован по каркасной технологии из строганых псухих пиломатериалов, утеплённый, всесезонный. Толщина каркаса и утепления - 190 мм. Этого достаточно для круглогодичного использования мини-дома даже в суровом климате. Перегородки со звукоизоляцией толщиной 95 мм. Фундамент - свайно-винтовой. Возможно использование другого типа фундамента - например, бетонный столючатый или ж/б забивные сваи.
Дизайн фасадов бытовки в скандинавском минималистичном стиле. Наружная отделка - вентилируемый фасад из имитации бруса. Покрытие кровли - профилированный лист. Отделка заднего фасада из практических соображений также профилированным листом.
Архитектурные параметры бытовки БТ-96:
Внешние размеры: 3,4 х 9 м (по каркасу).
Размеры внутри: 3 х 8,6 м (по каркасу).
Размеры террасы: 2,3 х 9 м.
Высота потолка - 2,7 - 3,1 м.
Фундамент: свайно-винтовой.
Несущая конструкция: деревянный каркас из строганых пиломатериалов (доски 45х190 мм).
Перегородка: каркас из досок 45х95 мм.
Утепление: каменная вата 200 мм.
Кровля: двускатная.
Покрытие кровли: профлист.
Отделка фасада: имитация бруса, рейка, проф.лист.
Отделка интерьера: вагонка.
Состав проекта бытовки БТ-96:
Проект представляет из себя pdf-альбом (28 листов формата А4) и состоит из 3 разделов:
1. Архитектурные чертежи - раздел АР (пояснительная записка, маркировочный план, план кровли, фасады, разрезы, узлы, 3д-визуализация фасадов, спецификация окон и дверей, экспликация полов).
2. Конструктивные чертежи - раздел КР (чертежи всех конструктивных элементов со спецификацией материалов: фундамента, перекрытий, каркасов стен, стропильной системы).
3. Оптимизация раскроя пиломатериалов.
Стоимость проекта бытовки БТ-96:
3 500 рублей
Ограждающие конструкции:

Наружные стены:
1. Наружная отделка (имитация бруса).
2. Обрешётка.
3. Контробрешётка.
4. Ветрозащитная мембрана.
5. Стойки каркаса.
6. Утеплитель между стойками.
7. Пароизоляционная плёнка.
8. Контробрешетка.
9. Внутренняя отделка (вагонка).

Пол:
1. Ветрозащитная мембрана.
2. Опорные доски.
3. Дощатый настил.
4. Лаги пола.
5. Утеплитель (мин. вата).
6. Пароизоляционная плёнка.
7. Чёрный пол - фанера.
8. Чистовое покрытие пола (ламинат или др.).

Кровля:
1. Покрытие - проф.лист.
2. Обрешетка.
3. Контробрешетка.
4. Гидро- ветрозащитная мембрана.
5. Стропила.
6. Утеплитель (мин.вата).
7. Пароизоляция.
8. Контробрешетка.
9. Внутренняя отделка (вагонка).


Ответы на часто задаваемые вопросы:
Есть ли в проекте расчёт материалов?
Есть ли в проекте электрика? канализация?
Можно ли внести в проект изменения?
Есть ли в проекте смета?
Что делать, если в проекте будут ошибки?
Можно ли вернуть деньги за проект?
Купить проект мини-дома БТ-96
Если Вы хотите купить проект или задать вопросы — заполните контактную форму ниже или выберите удобный для Вас способ связи.
(Обязательно укажите название проекта)
+7 977 268 04 53
+7 977 268 04 53
novikov-architect@mail.ru


